Tamara and the Team at Hazelden Realty are delighted to present 9 Wattle Avenue, Beerburrum. There are homes that simply provide shelter, and then there are properties that quietly expand the way you live.
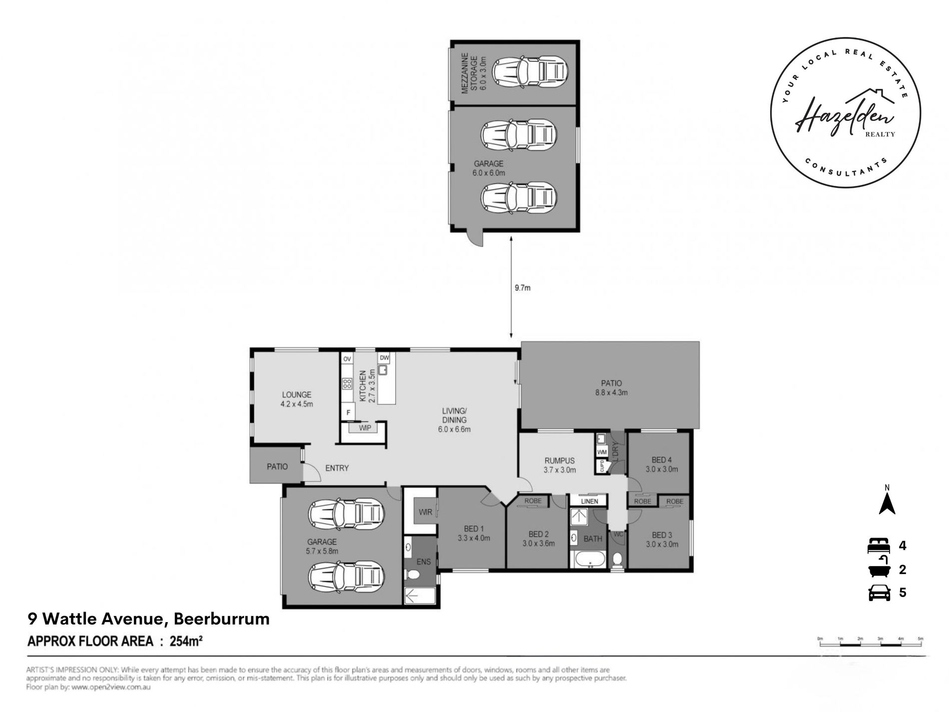
Positioned on a substantial 1,622m² fully fenced corner allotment with dual street access, this established Beerburrum residence offers something increasingly rare: room to move, room to grow and room to shape life your way.
Here, space is not just measured in square metres, it’s felt in the distance between neighbours, the sweep of open yard, the separation between home and shed, and the freedom that comes with a block designed for real living.
Set just moments from the Beerburrum connection to Steve Irwin Way, daily commuting remains effortless, while the property itself retains a grounded, peaceful village atmosphere.
Inside, the home unfolds with quiet confidence. A striking tiled entry introduces a layout that balances togetherness and retreat, multiple living zones creating natural places for gathering, relaxing or simply taking time out at the end of the day.
At the centre, an expansive open-plan kitchen, living and dining domain anchors the home. Granite surfaces add warmth and durability, while a walk-in pantry and generous proportions make this a space that supports both everyday routines and weekend entertaining.
The master suite provides space and privacy, complete with walk-in robe and ensuite framed by a character barn-style door, a subtle nod to the property’s relaxed rural edge. Additional bedrooms are positioned to the rear, creating a practical family zone supported by the main bathroom and ducted air conditioning for comfort throughout.
Outdoors, living continues beneath a full-length covered entertaining area overlooking established green surrounds, the kind of space where gatherings stretch long into the evening and children still have room to roam.
What truly sets this property apart is its exceptional corner configuration. The large 9m x 6m three-bay barn-style shed enjoys its own independent access, ideal for trades, storage, hobbies, vehicles or lifestyle pursuits, all while maintaining privacy and separation from the home itself.
This is the kind of holding that adapts with you.
A place for tools, projects, gatherings, gardens, movement and memory-making.
- Property Highlights -
- Rare 1,622m² fully fenced corner allotment with dual access
- Established brick residence with multiple living zones
- 4 bedrooms, 2 bathrooms, double garage
- Expansive open-plan kitchen, living and dining
- Granite bench tops and walk-in pantry
- Separate lounge, family and activity areas
- Ducted air conditioning, ceiling fans, plantation shutters
- Tinted windows throughout
- Full-length covered outdoor entertaining
- Additional 2000L rainwater tank
- 6kW solar system with new inverter
- 9m x 6m three-bay barn-style shed with mezzanine
- Generous yard space and established gardens
- Easy access to Steve Irwin Way and commuter routes
For those seeking land, flexibility and a home that supports the way life is truly lived, 9 Wattle Avenue offers a rare and grounded opportunity within the heart of Beerburrum.
* Disclaimer: Although utmost care has been taken in the creation of this marketing material, Hazelden Realty assumes no liability or responsibility for any inaccuracies in the information presented. It is advised that all parties conduct their own investigations and inquiries.
** This property may or may not be marketed with a price and therefore a price guide may not always be stipulated. This platform may have categorised the property into a price bracket for functionality purposes.
- Air Conditioning
- Ducted Cooling
- Ducted Heating
- Fully Fenced
- Outdoor Entertainment Area
- Remote Garage
- Secure Parking
- Shed
- Dishwasher
- Solar Panels
- Water Tank






















































